ROZDZIELNICA Z MODUŁEM POMIAROWYM AIR17 MOP2

AIR 17
MOP2

Z modułem pomiarowym

DANE TECHNICZNE AIR17 MOP2 17,5kV-630/400A-20kA

  •  
  • Napięcie znamionowe: 17,5 kV
  • Napięcie robocze: 15 kV
  • Prąd znamionowy pól liniowych (zasilanie): 630A
  • Prąd znamionowy podstaw bezpiecznikowych: 400A
  • Częstotliwość: 50/60Hz
  • Prąd krótkotrwały wytrzymywany: 20kA/1s
  • Znamionowy prąd szczytowy: 50kA
  • Znamionowy prąd załączania : 50kA
  • Poziom izolacji
    a) wytrzymywane napięcie przemienne (1 min.) : 38kV
    b) wytrzymywane napięcie udarowe: 95kV
  • Zgodność z normą:IEC 62271-200 (ex IEC 60298)
  • Stopień ochrony : IP30

WYPOSAŻENIE

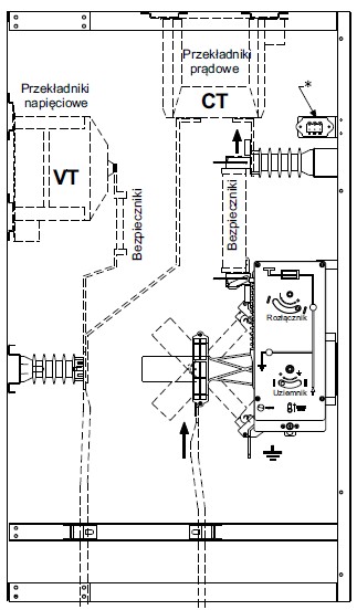
  • Wnętrzowy, trójpołożeniowy (ON-OFF-UZIEMIENIE), trójbiegunowy rozłącznik z bezpiecznikami, typu THVR 17, 17,5kV-630/400A-20kA.
  • Napęd niezależny, typu T2, przystosowany do obsługi ręcznej, zapewnia automatyczne wyłączanie w przypadku przepalenia jednego z bezpieczników (wyposażony w wybijak bezpiecznikowy).
  • Cewka wyzwalacza 230V / 50Hz.
  • Mikroprzełącznik 1NO+1NC.
  • · 3-biegunowa podwójna podstawa bezpiecznikowa, podstawy odpowiednia dla bezpieczników zgodnych z normami DIN 43625 oraz IEC 60282-1 17,5 kV HRC, 2 x 200A, bezpieczniki o długości 292 mm (SIBA) – (dwa uchwyty bezpiecznikowe równolegle w każdej fazie).
  • Zestaw blokad mechanicznych pomiędzy wyłącznikami.
  • Blokada drzwi.
  • Schemat synoptyczny na elewacji.
  • 3 zaciski kablowe dla kabli na wejściu (od strony zasilania).
  • 3 zaciski kablowe dla kabli wyjściu (od strony odpływu).
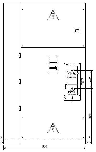
Wymiary gabarytowe 900 x 900 x 1650mm (wys.)

Cały sprzęt jest zaprojektowany, wyprodukowany oraz przetestowany zgodnie z międzynarodowymi normami IEC, a cykl produkcyjny podlega jakościowym wymogom określanym przez ISO 9001:2015;

Wszystkie rozdzielnice SN, przed wysłaniem, przechodzą rutynowe testy zgodne z normami IEC w laboratorium firmy Contactplasma.

RYSUNKI I ZDJĘCIA