Rozdzielnica średniego napięcia

TGI
AIR24​
kokpit-rozdzielnicysn

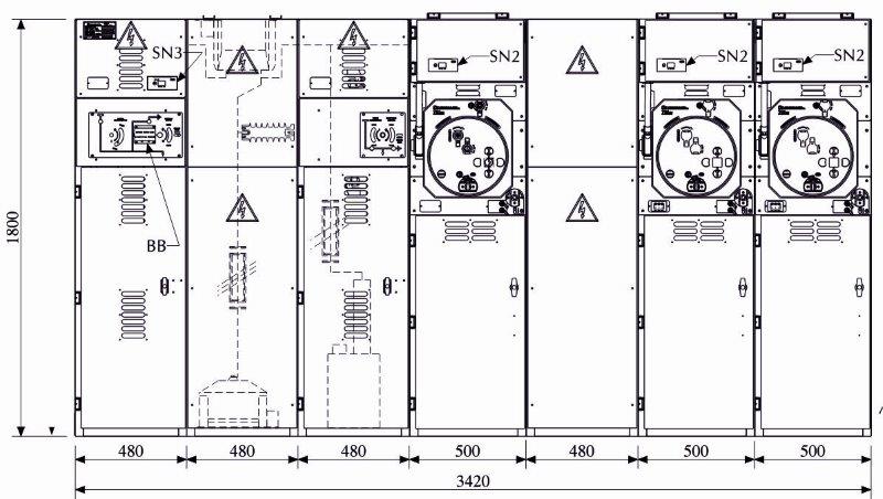
POLE WYŁĄCZNIKOWE TGI / ROZDZIELNICA AIR24

Praca na sieciach elektroenergetycznych nie dopuszcza możliwości popełniania błędów, w związku z tym zastosowane urządzenia powinny być możliwie proste oraz intuicyjne w obsłudze. Z tego powodu pole wyłącznikowe TGI/IGT zostało zaprojektowane tak było łatwe w użyciu dzięki przejrzystemu sterowaniu. Urządzenie jest interaktywne, zdalnie sterowane i zdolne do przekazania informacji o stanie urządzeń oraz linii elektroenergetycznych do nadzoru technicznego. Pola wyłacznikowe rozdzielnicy AIR24 nie zawierają sześciofluorku siarki (SF6)

Rozłączenie w wyłączniku TGI następuje w próżni, a wraz z ruchem obrotowym pojawia się widoczna powietrzna przerwa izolacyjna. Zastosowane rozwiązanie z izolacją powietrzną wewnątrz panelu wolnego od gazu SF6 czyni to urządzenie w pełni ekologiczne.

Wyłącznik TGI jest ewolucyjnym rozwiązaniem przy budowie nowoczesnej dystrybucji energii elektrycznej zasilania. Spełnia jednocześnie trzy różne wymagania związane i dotyczące instalacji elektrycznych takich jak:

  • załączanie / wyłączanie,
  • izolacja,
  • uziemienie.

WYSUWNY, IZOLOWANY POWIETRZEM KORPUS WYŁĄCZNIKA TGI

Wymogi odnośnie wyraźnie oznaczonej lub widocznej przerwy izolacyjnej są spełniane przez wyłącznik TGI. Obie te funkcje są zrealizowane dzięki izolacji powietrznej. Pozwala to personelowi, pracownikom obsługi na bezpośrednią kontrolę wizualną stanu pół TGI / IGT będących pod napięciem.

KOMPAKTOWE WYMIARY, UNIWERSALNOŚĆ

Uniwersalna i kompaktowa (zmniejszona szerokość paneli) konstrukcja pozwala uzyskać pomniejszone gabaryty rozdzielnicy, mniejsze o około 30% szerokości w stosunku do tradycyjnych pól rozdzielnic SN co finalnie pozwala wydatnie zmniejszyć koszty nowych inwestycji, np. stacji transformatorowych SN/nn. Uniwersalna konstrukcja poszczególnych pól AIR24 sprawia, że ilość pól oraz wariantów rozdzielnic AIR24 jest nieograniczona.

DANE TECHNICZNE

WYŁĄCZNIK

 

TGI 12

TGI 17

TGI 24

Odległość pomiędzy biegunami

mm

230

230

230

Normy

IEC 62271-100
CEI 17-1

     

Napięcie znamionowe

Ur [kV]

12

17.5

24

Napięcie znamionowe izolacji

Us [kV]

12

17.5

24

Napięcie wytrzymywane przy 50 Hz

Ud (1’) [kV]

28

38

50

Napięcie wytrzymywane impulsowe

Up [kV]

75

95

125

Częstotliwość znamionowa

Fr [Hz]

50-60

50-60

50-60

Prąd namionowy (40°C)

Ir [A]

630 800 1250

630 800 1250

630 800 1250

Znamionowa zdolność wyłączania

Isc [kA]

12.5 … ...

16 16 16

20 20 20

25* 25* 25*

12.5 … ...

16 16 16

20 20 20

25* 25* 25*

12.5 … ...

16 16 16

20 20 20

25* 25* 25*

Znamionowy prąd wytrzymywany krótkotrwały (3s)

 

Ik [kA]

12.5 … ...

16 16 16

20 20 20

25* 25* 25*

12.5 … ...

16 16 16

20 20 20

25* 25* 25*

12.5 … ...

16 16 16

20 20 20

25* 25* 25*

Zdolność łączeniowa

Ip [kA]

31.5 - -

40 40 40

50 50 50

63* 63* 63*

31.5 - -

40 40 40

50 50 50

63* 63* 63*

31.5 - -

40 40 40

50 50 50

63* 63* 63*

Sekwencja operacji 

O-0.3s-CO-15s-CO

     

Czas otwierania

[ms]

10 - 30

10 - 30

10 - 30

Czas łuku elektr.

[ms]

10 - 15

10 - 15

10 - 15

Całkowity czas wyłączania 

[ms]

20 - 45

20 - 45

20 - 45

Czas zamykania

[ms]

25 - 45

25 - 45

25 - 45

Temperatura pracy

[°C]

-5 ÷ +40

-5 ÷ +40

-5 ÷ +40

Tropicalizacja

IEC 60068-2-30
IEC 60271-2-1

     

Kompatybilność elektromagnetyczna

IEC 62271-1